Bộ Tủ Bếp Gỗ Gõ Đỏ Tại Biệt Thự Nhà Anh Thắng, Chị Chi Ở Hưng Yên
Phòng bếp gỗ Gõ Đỏ vừa được Thuận Phát hoàn thiện cho gia đình anh Thắng, chị Chi ở Hưng Yên. Tủ bếp và các hệ tủ trong phòng sử dụng chất liệu gỗ Gõ Đỏ cao cấp thiết kế theo phong cách Bắc Âu sang trọng, đẳng cấp. Toàn bộ hệ phụ kiện tủ bếp + thiết bị bếp nhập khẩu được Thuận Phát cung cấp trọn gói. Cùng đón xem siêu phẩm phòng bếp này nhé!
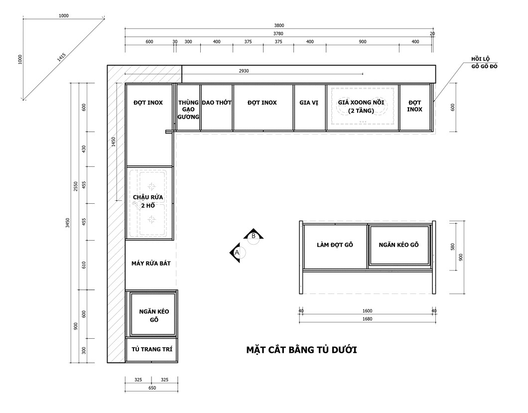
Thiết kế bộ tủ bếp inox cánh gỗ Gõ Đỏ nhà anh Thắng ở Hưng Yên



Ảnh hoàn thiện bộ tủ bếp Gõ Đỏ
- Tổng quan bộ tủ bếp nhà anh Thắng

- Chi tiết thiết bị, phụ kiện bộ tủ bếp nhà anh Thắng
Tủ bếp trên tiêu chuẩn: Thùng Inox 304 gập chấn CNC dày 5zem - Cánh gỗ Gõ Đỏ Pachy dày 20mm


Tủ bếp dưới cao 860mm, sâu 580mm: - Thùng Inox 304 gập chấn CNC dày 5zem - Cánh gỗ Gõ Đỏ Pachy dày 20mm



Tủ thiết bị: - Thùng gỗ Gõ Đỏ Pachy dày 18mm, hậu Veneer Gõ (Cốt gỗ cao su) dày 18mm - Cánh gỗ Gõ Đỏ Pachy dày 20mm

Bàn Đảo: - Thùng gỗ Gõ Đỏ Pachy dày 18mm, hậu Veneer Gõ (Cốt gỗ cao su) dày 18mm - Cánh gỗ Gõ Đỏ Pachy dày 20mm

Đá bàn bếp:đá vicostone nhóm A

Tay nâng hạ cánh đôi Blum HF 25
Giá bát: nâng hạ cơ, Inox 304, 2 tầng Hãng: Fandi Mã: FAO.900

Giá để xoong nồi: Gắn cánh kéo inox 304 Hãng Fandi Mã: FCD.900


Giá để giao thớt kết hợp gia vị: Gắn cánh kéo inox 304 Hãng Fandi Mã: FEO.400
Giá gia vị: gắn cánh kéo Hãng: Fandi Mã FKD.400
Đèn led dây thanh màu trung tính
Nếu bạn có bất kỳ thắc mắc nào cho sản phẩm tủ bếp hoặc nội thất, chúng tôi luôn sẵn sàng hỗ trợ bạn với 5 cách dưới đây:
- Chuyên gia tư vấn trên công cụ chat trực tuyến ngay góc dưới bên phải màn hình của bạn
- Tư vấn trực tiếp với Zalo: 0987 528 552
- Tư vấn trực tiếp bằng cuộc gọi tới số 0987 528 552
- Tư vấn trực tiếp tại Showroom tủ bếp Thuận Phát - 199, Giáp Nhất, Thanh Xuân, Hà Nội - Nơi bạn có thể thấy tận mắt những modun tủ bếp hiện đại bậc nhất.
- Để lại thông tin và nhận tư vấn tại nhà bởi một Chuyên viên Nội Thất Thuận Phát - Lưu ý rằng nó hoàn toàn miễn phí.
Nội Thất Thuận Phát - đơn vị thiết kế thi công nội thất hàng đầu
+ Nội Thất Thuận Phát đã có hơn 10 năm kinh nghiệm thiết kế và thi công nội thất gia đình
+ Sẵn sàng mới khách hàng về xưởng khảo sát năng lực thiết kế và thi công của công ty.
+ Miễn phí hoàn toàn phần khảo sát, lên ý tưởng và thiết kế sản phẩm cho khách hàng.
+ Kết hợp chặt chẽ giữa khách hàng và nhóm thiết kế trong quá trình thiết kế nhằm tạo nên một sản phẩm mang dấu ấn phong cách của gia chủ.
+ Công ty có đầy đủ máy móc hiện đại nhất để thi công những chi tiết sản phẩm có độ khó nhất hiện nay
+ Công ty sẽ hoàn tiền cho khác hàng nếu sản phẩm không đạt như cam kết ban đầu.
+ Rất nhiều sản pẩm đã thi công nhận được sự hài lòng tuyệt đối từ khách hàng.
.png)

