Tủ Bếp Inox Cánh Kính Cường Lực Bóng Gương Nhà Anh Hoàng - Thịnh Liệt
Review bộ tủ bếp cánh kính cường lực bóng gương thùng inox 304 cao cấp nhập khẩu module rời, cánh kính cường lực viền nhôm màu be Nội Thất Thuận Phát vừa hoàn thiện cho gia đình anh Hoàng - Thịnh Liệt dưới đây.
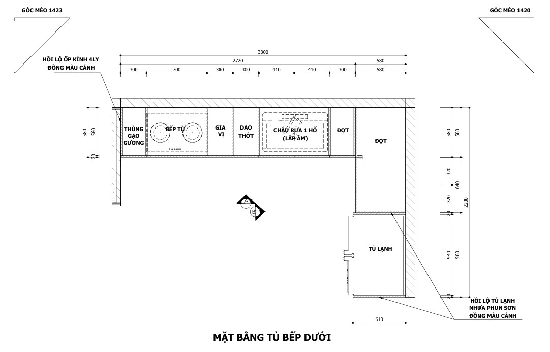
Thiết kế bộ tủ bếp inox cánh kính màu be



Ảnh hoàn thiện bộ tủ bếp inox cánh kính
-
Tổng quan bộ tủ bếp


-
Chi tiết thiết bị, phụ kiện bộ tủ bếp nhà anh Hoàng - Thịnh Liệt:
Tủ bếp trên: Thùng inox 304 cao cấp nhập khẩu module rời, Cánh kính cường lực viền nhôm màu be. Hồi lộ ốp kính 4mm.

Tủ bếp dưới: Thùng inox 304 cao cấp nhập khẩu module rời, Cánh kính cường lực viền nhôm màu be.
PHỤ KIỆN, THIẾT BỊ
Đá Vicostone nhóm A mã BQ 2600.
Kính ốp tường cường lực Hải Long dày 8mm, màu đen.
Bếp từ Bosch PXY875KW1E serie 8 KT 816*527mm.
Giá bát nâng hạ Grob C1C304-190 KT900mm. Tay nâng cánh đôi Blum HF25.

Giá bát cố định Fandi KT 900mm (3 tầng). Tay nâng cánh đôi Blum HF25.
Giá xoong nồi Fandi FC3804 KT 800mm (2 tầng).
Khay chia thìa dĩa hợp kim nhôm Grob KT 800mm.

Mâm xoay góc ½ inox 304 KT 800mm.
Thùng gạo gương Fandi KT 300mm.
Ngăn gia vị

Bản lề giảm chấn inox 304 Hafele. Ray âm giảm chấn Hafele. Piston đơn.
Đèn LED dây thanh cảm ứng màu trung tính.
Nếu bạn có bất kỳ thắc mắc nào cho sản phẩm tủ bếp hoặc nội thất, chúng tôi luôn sẵn sàng hỗ trợ bạn với 4 cách dưới đây:
Chuyên gia tư vấn trên công cụ chat trực tuyến ngay góc dưới bên phải màn hình của bạn
Tư vấn trực tiếp với Zalo: 0987 528 552
Tư vấn trực tiếp bằng cuộc gọi tới số 0987 528 552
Tư vấn trực tiếp tại Showroom tủ bếp Thuận Phát - 142 Nguyễn Xiển, Thanh Xuân, Hà Nội - Nơi bạn có thể thấy tận mắt những modul tủ bếp hiện đại bậc nhất.
Để lại thông tin và nhận tư vấn tại nhà bởi một Chuyên viên Nội Thất Thuận Phát - Lưu ý rằng nó hoàn toàn miễn phí.
.png)

