Tủ Bếp Inox Cánh Gỗ Công Nghiệp MDF Phủ Acrylic Nhà Anh Đức
Bộ tủ bếp inox cánh gỗ công nghiệp MDF phủ Acrylic bóng gương với màu Trắng chủ đạo vừa được Nội Thất Thuận Phát hoàn thiện tại nhà anh Đức ở Trần Quốc Toản. Tủ bếp sử dụng chất liệu thùng inox 304 kết hợp với cánh gỗ công nghiệp phủ lớp Acrylic bóng gương cho khả năng chống nước tuyệt đối, chống ẩm, chống mối mọt hoàn hảo. Xem ngay những góc quay đẹp nhất của bộ tủ bếp Đẹp Hiện Đại vào đầu năm 2026 nhé!
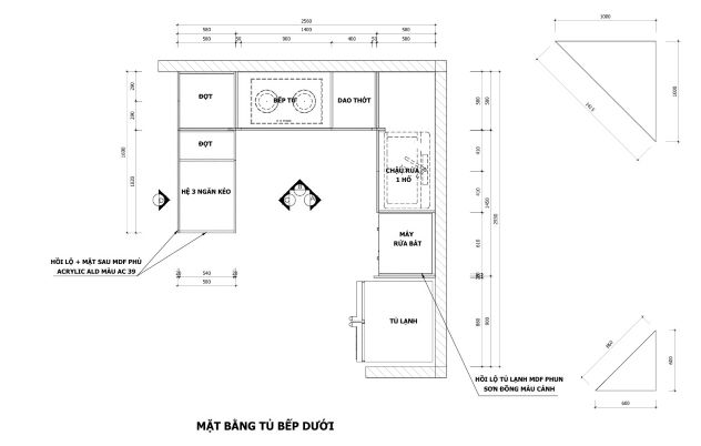
Thiết kế bộ tủ bếp inox cánh gỗ công nghiệp MDF phủ Acrylic





Ảnh hoàn thiện bộ tủ bếp inox cánh gỗ công nghiệp MDF phủ Acrylic
-
Tổng quan bộ tủ bếp



-
Chi tiết thiết bị, phụ kiện bộ tủ bếp nhà anh Đức - Trần Quốc Toản
Tủ bếp trên: Thùng inox 304 gập chấn CNC dày 0.5mm, cánh MDF phủ acrylic màu đơn sắc (Mã màu AC39)

Tủ bếp dưới: Thùng inox 304 gập chấn CNC dày 0.5mm, cánh MDF phủ acrylic màu đơn sắc (Mã màu AC39)

Đá bàn bếp: Đá Quoắc khổ 610
Đèn led dây thanh cảm ứng trung tính
PHỤ KIỆN, THIẾT BỊ
Tay nâng Blum.
Giá dao thớt, inox 304 Hãng: Grob

Giá bát cố định inox 304, nan Oval Hãng: Fandi

Giaá xoong nồi inox 304 Hãng: Fandi Mã: FCD.900

Ngăn kéo inox kèm ray âm giảm chấn Haafele cho ngăn kéo
Khay chia thìa nhựa kích thước 900 Hãng: Grob Mã: KCN.900

Bản lề giảm chấn Hãng: Blum
Piston đẩy cánh đơn Hafele
Chậu rửa bát Paul Schmitt PAM7643-UDE
Tặng bộ nồi bốn món đáy 5 lớp Fandi
Nếu bạn có bất kỳ thắc mắc nào cho sản phẩm tủ bếp hoặc nội thất, chúng tôi luôn sẵn sàng hỗ trợ bạn với 4 cách dưới đây:
- Chuyên gia tư vấn trên công cụ chat trực tuyến ngay góc dưới bên phải màn hình của bạn
- Tư vấn trực tiếp với Zalo: 0987 528 552
- Tư vấn trực tiếp bằng cuộc gọi tới số 0987 528 552
- Tư vấn trực tiếp tại Showroom tủ bếp Thuận Phát - 199 Giáp Nhất, Thanh Xuân, Hà Nội - Nơi bạn có thể thấy tận mắt những modul tủ bếp hiện đại bậc nhất.
Để lại thông tin và nhận tư vấn tại nhà bởi một Chuyên viên Nội Thất Thuận Phát - Lưu ý rằng nó hoàn toàn miễn phí.
.png)

